logo

Kolahi Residential

Mashhad, Iran / 2021-2023

Kolahi Residential is a private seven-story project built on a 250 m2 site, located within a dense urban fabric. The primary design challenge was to create a well-proportioned composition with balanced geometry, reflected in the semi-2D facade. To achieve this, the facade’s main geometry is defined by horizontal divisions aligned with each floor, creating a cohesive and structured design. 

Facade design sequence 

Facade daylight render

Facade nightlight render 

 Texture played a key role in the design process. A new generation of moisture- and pressure-resistant brick was selected to evoke traditional Iranian architecture while harmonizing with the use of bright stone, both of which are prominent in contemporary Iranian design. Vertical texture was introduced through the arrangement of bricks, further strengthened by the addition of metal and brick railings in specific areas of the facade, enhancing the overall aesthetic and structural integrity.

Details in facade-Brick,Stone & metal

Ground floor plan/Parking

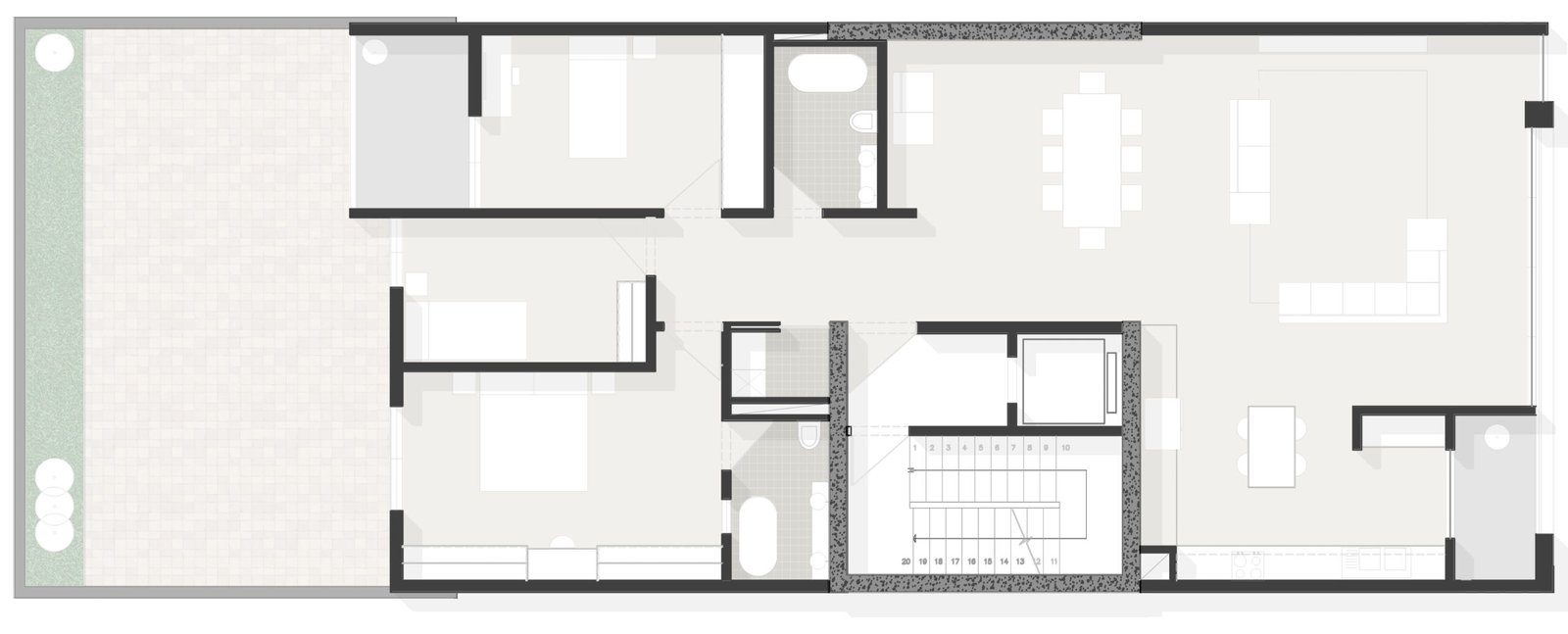
Tipical floor plan:

Interior Design Gallery:

Roof garden( Fountain-Barbecue-Pergola)

Built Project

Used Software :

2D Drawing: Auto CAD

3D Modeling: Sketchup Pro

3D rendering: Lumion (Exterior) & Twinmotion (interior)

Postproduction: Photoshop

error: Content is protected !!